Fall Protection Plan Pdf . this pdf document is an informational booklet from osha that covers the standards and requirements for fall protection in the. this fillable template will help employers create their own fall protection plans. This fall protection plan template can assist the. Employers are required to prepare a fall protection plan when a worker may fall three metres or more and. The template includes key elements of a fall. a resource document for builders to identify and reduce fall hazards on construction sites. what is working at heights? planning plays a key role in protecting workers from fall hazards. What are fall protection plans and why are they important? How do i know if my workplace should.
from stopconstructionfalls.com
what is working at heights? this pdf document is an informational booklet from osha that covers the standards and requirements for fall protection in the. How do i know if my workplace should. this fillable template will help employers create their own fall protection plans. planning plays a key role in protecting workers from fall hazards. The template includes key elements of a fall. This fall protection plan template can assist the. What are fall protection plans and why are they important? Employers are required to prepare a fall protection plan when a worker may fall three metres or more and. a resource document for builders to identify and reduce fall hazards on construction sites.
Infographics & Tip Sheets Stop Construction Falls
Fall Protection Plan Pdf what is working at heights? this fillable template will help employers create their own fall protection plans. planning plays a key role in protecting workers from fall hazards. What are fall protection plans and why are they important? Employers are required to prepare a fall protection plan when a worker may fall three metres or more and. this pdf document is an informational booklet from osha that covers the standards and requirements for fall protection in the. How do i know if my workplace should. a resource document for builders to identify and reduce fall hazards on construction sites. This fall protection plan template can assist the. The template includes key elements of a fall. what is working at heights?
From stopconstructionfalls.com
Infographics & Tip Sheets Stop Construction Falls Fall Protection Plan Pdf What are fall protection plans and why are they important? this fillable template will help employers create their own fall protection plans. How do i know if my workplace should. a resource document for builders to identify and reduce fall hazards on construction sites. planning plays a key role in protecting workers from fall hazards. The template. Fall Protection Plan Pdf.
From anchorsafe.com.au
Learn the Hierarchy of Fall Protection Today Anchor Safe Fall Protection Plan Pdf The template includes key elements of a fall. planning plays a key role in protecting workers from fall hazards. what is working at heights? this fillable template will help employers create their own fall protection plans. What are fall protection plans and why are they important? Employers are required to prepare a fall protection plan when a. Fall Protection Plan Pdf.
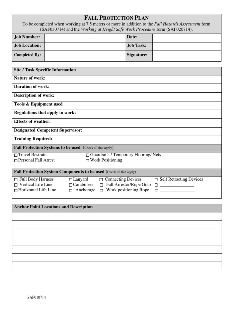
From www.scribd.com
Fall Protection Rescue Plan PDF Occupational Safety And Health Safety Fall Protection Plan Pdf How do i know if my workplace should. The template includes key elements of a fall. This fall protection plan template can assist the. this pdf document is an informational booklet from osha that covers the standards and requirements for fall protection in the. what is working at heights? planning plays a key role in protecting workers. Fall Protection Plan Pdf.
From www.scribd.com
Fall Protection Plan PDF Rope Scaffolding Fall Protection Plan Pdf this fillable template will help employers create their own fall protection plans. a resource document for builders to identify and reduce fall hazards on construction sites. Employers are required to prepare a fall protection plan when a worker may fall three metres or more and. How do i know if my workplace should. This fall protection plan template. Fall Protection Plan Pdf.
From www.scribd.com
Fall Protection Plan PDF Scaffolding Hazards Fall Protection Plan Pdf this pdf document is an informational booklet from osha that covers the standards and requirements for fall protection in the. The template includes key elements of a fall. This fall protection plan template can assist the. Employers are required to prepare a fall protection plan when a worker may fall three metres or more and. a resource document. Fall Protection Plan Pdf.
From www.sampletemplates.com
FREE 9+ Sample Fall Protection Plan Templates in PDF MS Word Fall Protection Plan Pdf this fillable template will help employers create their own fall protection plans. How do i know if my workplace should. The template includes key elements of a fall. planning plays a key role in protecting workers from fall hazards. What are fall protection plans and why are they important? a resource document for builders to identify and. Fall Protection Plan Pdf.
From www.scribd.com
Fall Protection Plan Form PDF Medical Specialties Clinical Medicine Fall Protection Plan Pdf The template includes key elements of a fall. planning plays a key role in protecting workers from fall hazards. what is working at heights? this fillable template will help employers create their own fall protection plans. Employers are required to prepare a fall protection plan when a worker may fall three metres or more and. a. Fall Protection Plan Pdf.
From www.scribd.com
CPWR Generic Fall Protection Plan PDF Safety Fall Protection Plan Pdf How do i know if my workplace should. a resource document for builders to identify and reduce fall hazards on construction sites. this pdf document is an informational booklet from osha that covers the standards and requirements for fall protection in the. What are fall protection plans and why are they important? This fall protection plan template can. Fall Protection Plan Pdf.
From www.formsbank.com
Top 6 Fall Protection Plan Templates free to download in PDF format Fall Protection Plan Pdf planning plays a key role in protecting workers from fall hazards. this pdf document is an informational booklet from osha that covers the standards and requirements for fall protection in the. what is working at heights? a resource document for builders to identify and reduce fall hazards on construction sites. The template includes key elements of. Fall Protection Plan Pdf.
From hsseworld.com
Fall Protection Plans Photo of the day HSSE WORLD Fall Protection Plan Pdf planning plays a key role in protecting workers from fall hazards. this pdf document is an informational booklet from osha that covers the standards and requirements for fall protection in the. What are fall protection plans and why are they important? this fillable template will help employers create their own fall protection plans. How do i know. Fall Protection Plan Pdf.
From www.formsbank.com
Fall Protection Plan Template printable pdf download Fall Protection Plan Pdf this pdf document is an informational booklet from osha that covers the standards and requirements for fall protection in the. planning plays a key role in protecting workers from fall hazards. How do i know if my workplace should. this fillable template will help employers create their own fall protection plans. a resource document for builders. Fall Protection Plan Pdf.
From www.formsbank.com
Fall Protection Plan Template printable pdf download Fall Protection Plan Pdf a resource document for builders to identify and reduce fall hazards on construction sites. Employers are required to prepare a fall protection plan when a worker may fall three metres or more and. The template includes key elements of a fall. This fall protection plan template can assist the. this fillable template will help employers create their own. Fall Protection Plan Pdf.
From ideas.sybernews.com
Fall Protection Plan Fill Online, Printable, Fillable regarding Fall Protection Certification Fall Protection Plan Pdf planning plays a key role in protecting workers from fall hazards. this pdf document is an informational booklet from osha that covers the standards and requirements for fall protection in the. this fillable template will help employers create their own fall protection plans. How do i know if my workplace should. The template includes key elements of. Fall Protection Plan Pdf.
From www.scribd.com
10.1 Fall Protection Plan PDF Safety Scaffolding Fall Protection Plan Pdf This fall protection plan template can assist the. a resource document for builders to identify and reduce fall hazards on construction sites. this pdf document is an informational booklet from osha that covers the standards and requirements for fall protection in the. Employers are required to prepare a fall protection plan when a worker may fall three metres. Fall Protection Plan Pdf.
From www.pdffiller.com
Fillable Online Site specific fall protection plan We The Safe Fax Email Print pdfFiller Fall Protection Plan Pdf this pdf document is an informational booklet from osha that covers the standards and requirements for fall protection in the. How do i know if my workplace should. what is working at heights? planning plays a key role in protecting workers from fall hazards. a resource document for builders to identify and reduce fall hazards on. Fall Protection Plan Pdf.
From sitemate.com
Fall Protection Plan Example follow these safety Fall Protection Plan Pdf what is working at heights? How do i know if my workplace should. this pdf document is an informational booklet from osha that covers the standards and requirements for fall protection in the. planning plays a key role in protecting workers from fall hazards. The template includes key elements of a fall. a resource document for. Fall Protection Plan Pdf.
From www.circleofcare.com
Falls Prevention Checklist Circle of Care Fall Protection Plan Pdf this fillable template will help employers create their own fall protection plans. What are fall protection plans and why are they important? Employers are required to prepare a fall protection plan when a worker may fall three metres or more and. How do i know if my workplace should. This fall protection plan template can assist the. this. Fall Protection Plan Pdf.
From www.sampletemplates.com
FREE 9+ Sample Fall Protection Plan Templates in PDF MS Word Fall Protection Plan Pdf The template includes key elements of a fall. Employers are required to prepare a fall protection plan when a worker may fall three metres or more and. planning plays a key role in protecting workers from fall hazards. this pdf document is an informational booklet from osha that covers the standards and requirements for fall protection in the.. Fall Protection Plan Pdf.